Trout Architects

  • Facebook
  • Instagram

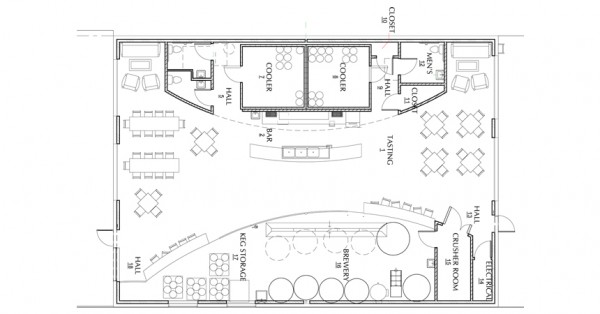
Clairvoyant Brewery

With the opening of the Clairvoyant brewing, Trout Architects is excited to add a 5th brewery to our project list. The new 3,300 SF brewery and tasting room has become a reuse of a former auto repair shop in the west end Boise neighborhood. Large roll up doors at each end of the building offers a diverse access of outdoor seating for sampling brews during the spring through autumn seasons. Local residence walk, ride and drive to this official oasis to meet up in the unrestrained tasting room and brewery. Two long curving wood counter tops are the choice of seating with table seating and TV’s on the perimeter.  Trout Architects has created a neighborhood place that has helped Clairvoyant to re-energize to the west end with its one of a kind of brew.

 

  • FIRM PROFILE
    • Firm History
    • Staff
      • Steve Trout – AIA, LEED AP, Principal
      • Shaun Weston – Architect
      • Neil King – Drafting Technician
      • Carrie Durant – Office Manager
    • Publications
    • Awards
    • Services
  • Philosophy
    • Architecture + Design
    • Environmentally Conscious
    • Historic Preservation
  • Projects
    • Residential
      • Multi-family
        • Boise State University Apartments
        • Davis Park Apartments
        • River’s Bend Condominiums
        • Gateway Crossing Apartments
        • Grand Avenue Homes
      • Single Family
        • Hill House
        • Foothills House
        • Hill Road Houses
        • Klein House
        • McCall Housing
        • Troutner House Addition
        • Warm Springs Residence
        • Veltex Condominium
    • Planning
      • Harriman State Park
      • Brookside Village
      • Fort Boise VA Study
      • University of Idaho Physics Building
    • Public
      • Arts
        • Art Experience Gallery
      • Education
        • Boise State University TECenter
        • Frontier Point Lodge
      • Library
        • Caldwell Public Library Children’s Area Remodel
        • Collister Neighborhood Library
        • Hillcrest Neighborhood Library
        • Boise Main Library – Conceptual Study
        • Boise Main Library – Support Services Remodel
        • Boise Main Library – 3rd Floor Remodel
      • Municipal
        • Boise City Hall – Second Floor
        • Boise Veterans Administration Medical Center Campus
        • Blaine County Courthouse Annex
      • Museums
        • Boise Art Museum Addition
      • Non-Profits
    • Historic
      • Adaptive Reuse
        • Modern Hotel and Bar
        • Harriman State Park – Scovel Center
        • Syringa Networks – Idaho Falls
        • Churchill School Renovation
      • Preservation
        • Bown House Renovation
        • Klein House
        • Schick-Ostolasa Farmstead
        • Harriman State Park – Harriman Cottage
        • O’Farrell Cabin Restoration
        • Christ Chapel Stabilization
        • Harriman State Park – Bunkhouse
      • Renovation
        • Baxter Apartment Building Renovation
        • Boise VA Building #4 Surgeon’s Quarters
        • R.Z. Johnson Building
        • Hopffgarten Restoration & Renovation
        • Blaine County Courthouse Roof
        • Blaine County Historic Courthouse Stair
        • Harriman State Park – Dude Barns
        • Troutner House Addition
      • Studies
        • First Bank of Vale
        • Central High School
        • Fort Boise VA Study
    • Commercial
      • Breweries
        • Boise Brewing
        • Slanted Rock Brewing Company
        • Woodland Empire Ale Craft
        • Clairvoyant Brewery
      • Retail
        • J Crist Gallery
        • Newt and Harolds
      • Office
        • Syringa Networks – Idaho Falls
      • Medical
        • Primary Health
      • Hospitality
        • Lucy’s Coffee and Espresso
        • Moxie Java – Vista
  • On The Boards
    • Brewery
    • Historic
      • Gene Harris Bandshell Restoration
      • Boise Basin Mercantile
      • Spalding Hall Renovations
      • Boise Reserve Street Armory
      • Teton County Historic Courthouse
      • Lincoln Creek Day School
    • Public
      • Chaussee Swan
      • Boise River Sculpture Repair & Renovation
  • Contact
© 2026 Trout Architects
Powered by Valice